Friday, May 31, 2013
Common errors in construction estimating
Friday, May 24, 2013
ParsCo Value Engineering: Tips and Process Overview
ParsCo Construction located in Pensacola Florida services the entire Gulf Coast Region and Southeast - www.parscoconstruction.com. With over $500M in experience, ParsCo has devised solutions to construction cost budget issues. It seems that all too often Owners end up with a project that they can't afford to build and they are forced to cut costs and sacrifice design elements to make a project a reality.
ParsCo is an expert in the value engineering process. If ParsCo is engaged on the front end of a project, the Owner will rarely find themselves with a design that can't be constructed for their budget. ParsCo makes sure they govern over the design process to prevent over design.
However, if ParsCo is not involved in the design stages, they can still be brought in to to "value engineer" a design and make a project a reality.
Value Engineering (VE) is not a design/peer review or a cost-cutting exercise. VE is a creative, organized effort, which analyzes the requirements of a project for the purpose of achieving the essential functions at the lowest total costs (capital, staffing, energy, maintenance) over the life of the project. Through a group investigation, using experienced, multi-disciplinary teams, value and economy are improved through the study of alternate design concepts, materials, and methods without compromising the functional and value objectives of the client.Value Engineering is a conscious and explicit set of disciplined procedures designed to seek out optimum value for both initial and long-term investment. First utilized in the manufacturing industry during World War II, it has been widely used in the construction industry for many years.
ParsCo's VE services can be applied at any point in a project, even in construction. However, typically the earlier it is applied the higher the return on the time and effort invested. The three main stages of a project and VE's application are described below.
Planning
At the Planning stage of development, there are additional benefits to be derived from a ParsCo Value Engineering Workshop. The ParsCo team can:
- Review the program
- Perform a functional analysis of the facility
- Obtain the owner/users definition of value
- Define the key criteria and objectives for the project
- Verify/validate the proposed program
- Review master plan utility options (e.g. Central Utility Plant versus individual systems)
- Offer alternative solutions (square footage needs per function, adjacency solutions, etc.)
- Verify if the budget is adequate for the developed program
The benefits are tremendous.
- Any changes to the program at this stage have very little if any impact on schedule and A/E time and redesign costs.
- The project will be developed with fewer changes, redesigns, and a greater understanding by all parties of what the final function and space allocations will be.
- An independent team can bring a fresh outside view of alternate solutions from other similar projects.

Design
This is the stage that ParsCo is used to becoming involved, when the design has at least made it to the schematic stage. Most government agencies require at least one VE session at the design stage on projects over a certain $ size. The primary tool available to the VE team is the ParsCo Workshop—typically a 40-hour session (or less for smaller or less complex projects).
The ParsCo Workshop is an opportunity to bring the design team and client together to review the proposed design solutions, the cost estimate, and proposed implementation schedule and approach, with a view to implementing the best value for the money. The definition of what is good value on any particular project will change from client to client and project to project.
Methodology and Approach
During the actual ParsCo Workshop portion of the VE study, the five-step Job Plan is followed:
The ParsCo VE Job Plan follows five key steps:
- Information Phase
- Speculation (Creative) Phase
- Evaluation (Analysis) Phase
- Development Phase (Value Management Proposals)
- Presentation Phase (Report/Oral Presentation)
These five key steps are described as follows:
1. Information Phase:
At the beginning of the ParsCo VE Study, it is important to:
- Understand the background and decisions that have influenced the development of the design through a formal design presentation by the design A/E.
- Analyze the key functional issues governing the project. The functions of any facility or system are the controlling elements in the overall VE approach. This procedure forces the participants to think in terms of function, and the cost and impacts associated with that function.
- Define Owner's objectives and key criteria governing the project.
- Determine Owner's definition of Value.
2. Speculation (Creative) Phase:
This step in the ParsCo VE study involves the listing of creative ideas.
- The VE Team thinks of as many ways as possible to provide the necessary function within the project areas at a lesser initial or Life-Cycle Cost which represent improved value to the client.
- Judgment of the ideas is prohibited.
- The VE Team is looking for quantity and association of ideas, which will be screened in the next phase of the study.
- Many of the ideas brought forth in the creative phase are a result of work done in the function analysis. This list may include ideas that can be further evaluated and used in the design.
3. Evaluation (Analysis) Phase:
In this phase of the Project, the ParsCo VE Team, together with the Client and/or Users,
- Defines the criteria to be used for evaluation.
- Analyses and judges the ideas resulting from the creative session. Ideas found to be impractical or not worthy of additional study are discarded. Those ideas that represent the greatest potential for cost savings and value improvement are developed further. A weighted evaluation is applied in some cases to account for impacts other than costs (such as schedule impacts, aesthetics, etc.).
4. Development Phase:
During the development phase of the ParsCo VE study, many of the ideas are expanded into workable solutions. The development consists of:
- Description of the recommended design change.
- Descriptive evaluation of the advantages and disadvantages of the proposed recommendation.
- Cost comparison and LCC calculations.
- Each recommendation is presented with a brief narrative to compare the original design method to the proposed change.
- Sketches and design calculations, where appropriate, are also included in this part of the study.
5. Presentation Phase:
The last phase of the ParsCo VE Study is the presentation of the recommendations in the form of a written report. A briefing/oral presentation of results is made to the Client and Users, as well as the Design Team representatives. The recommendations, the rationale that went into the development of each proposal, and a summary of key cost impacts are presented at that time so that a decision can be made as to which Value Management proposals will be accepted for implementation and incorporation into the design documents.
In addition to the monetary benefits, a VE Workshop provides a valuable opportunity for key project participants to come together, then step aside and view the project from a different perspective. The ParsCo VE process therefore produces the following benefits:
- Opportunity to explore all possible alternatives
- Forces project participants to address "value" and "function"
- Helps clarify project objectives
- Identifies and prioritizes Client's value objectives
- Implements accepted proposals into design
- Provides feedback on results of the study
Construction
During this phase value engineering is still possible through the use of Value Engineering Change Proposals (VECP). ParsCo, a Certified General Contractor, can propose solutions that offer enhanced value to the owner, and share in the financial benefits realized. Clearly the owner must consider the proposals very carefully, from a life-cycle perspective and a liability perspective. The A/E team must be brought in to the decision-making process to agree to the proposed change as not having any negative impact on the overall design and building function. The evaluation of a VECP is treated similarly to any change order during construction, with issues such as schedule and productivity impacts being considered along with the perceived cost savings generated.
Conclusion
In the final analysis, Value Engineering is not only beneficial, but essential because:
- The functionality of the project is often improved as well as producing tremendous savings, both initial and Life-Cycle Cost.
- A "second look" at the design produced by the architect and engineers gives the assurance that all reasonable alternatives have been explored.
- Cost estimates and scope statements are checked thoroughly assuring that nothing has been omitted or underestimated.
- Assures that the best value will be obtained over the life of the building.
Friday, May 17, 2013
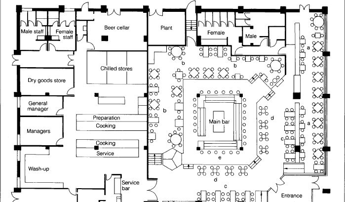
Restaurant Design and Construction - Pensacola, FL
ParsCo Construction recently completed a new restaurant project in Downtown Pensacola in a historic building. The Owner didn't have a set of design drawings and was limited to a tight budget. With this in mind, ParsCo used past methodologies and design approaches to assist the Owner in saving money on the restaurant design and putting that money towards construction. In the end the project was completed and the Owner was satisfied.
If you are planning a new restaurant project it is important to plan/budget properly for the following:
Restaurant Design and Construction Budgets – Usually one of the first questions we’re asked by those embarking on restaurant projects relates to budget. How much does it cost? Well, budgets can swing dramatically from project to project, but here are some rules of thumb. Generally, restaurants are built between $25 – $300 a square foot (some mega projects or ultra-high-end projects have gone for a few thousand a square foot), but this also depends on whether we are doing a renovation, or new construction. The cost for “restaurant design” and planning is often around 5-10% of the construction budget (considering strictly the design phases of the project, not larger concept development issues involved in large scale development projects). The type of restaurant you are building is certainly a factor – you’ll spend more per square foot for a fine dining restaurant than a fast-casual concept, generally speaking. Also, you should expect an entirely different financial model in approaching the creation of a new restaurant concept you plan to roll-out nationwide versus a single one-off concept. The former requires much more planning and development. An average Red Lobster is believed to cost around $120 per square foot and an average Starbucks around $85 per square foot. However, these companies have spent millions and millions in design, branding and purchasing planning/efficiencies, so a start-up shouldn’t expect to be anywhere near these ranges in creating a new concept from scratch. It is amazing how often someone thinks they will be the next Starbucks within a 10 year period and with a $500,000 investment. Starbucks has spent hundreds of millions of dollars to perfect what we see today in their latest restaurant prototype. It’s more than just wishful thinking to think it can be duplicated as a growth concept within the cost of what they can today build a single unit they’ve spent so much perfecting. Mega chains can afford seven-figure per year Executive Vice President’s and teams of hundreds working on a new concept. It’s believed well over $10M (“soft” costs) is spent developing just the prototype plans some projects. So can a new prototype be created for less than $10m? Of course. By all means. It’s less likely though that the next billion dollar brand can be conceived within less than the cost of opening a single unit though. At a minimum, you can expect to spend a lot more in the years to come correcting the mistakes of the under-funded prototype. There’s a saying, “Measure twice and cut once”.
ParsCo prides itself in working with customers that don't have the budget but have the vision to create a new concept and make it a reality. This requires the ParsCo construction team to assist them through the design and building process. No matter how large or small a new project is, ParsCo will work with you on developing the design and budgets necessary to make your project a reality.
Construction Documents - If you’re going to build or remodel a restaurant, ParsCo will need a set of scaled construction documents, often called "working drawings". These documents can be drawn on a CAD system or by hand and consist of space plans, elevations, schedules and details. These drawings are generally prepared by several design consultants and engineers, integrated into one set for submittal to your local building and health department.

Building Codes - All your plans, drawings and specifications should be in compliance with the building and health codes that are applicable to your location. Your drawings, plans, equipment and finish specifications should be approved by the following regulatory agencies:
- City or County Health Department
- Building Inspections/Planning and Zoning Departments
- Dept. of Building and Safety
- Fire Marshall
- Department of Restaurants or Authority Having Jurisdiction over Licensing
Each department will have an application and permit/licensing and possibly even a plan review fee. Note that during this review process it is not uncommon to find out that additional design changes may be required which may also change the costs of the construction for your project.
ParsCo, LLC
O: 850.696.7656
F: 850.390.4943
Visit us on the web at www.parscoconstruction.com
Tuesday, May 7, 2013
Benefits of using a Pre-Engineered Metal Building
ParsCo Pre-Engineered Metal Buildings - Gulf Coast Pensacola, Navarre, Destin, Mobile, Panama City, Southeast Region- contact ParsCo at 850-696-7656 or email us at info@pars-co.net.
In a rapidly changing economy, owners, builders, and architects are looking at a wide variety of options to get the most for their dollar. ParsCo Pre-engineered metal buildings offer a cost-effective, sustainable, long-term solution to our clients that are looking to maximize square footage on a tight budget.
ParsCo employs a top-notch drafting and engineering team skilled in Computer aided design and drafting (CADD). ParsCo's design team members are able to use our state-of-the-art computer tools to custom design each building system and all building components based on each customer's needs and specifications.
Every ParsCo Metal Building is based on local and national building codes making each metal building system to be engineered to the required dimensions and designed to meet the loading conditions that are required based on the location of the project. Once the building is designed and detailed, computerized instructions are sent to the fabrication plant where steel members are cut to exact standards. That precision custom manufacturing also reduces construction waste.
Metal buildings are extremely versatile and traditionally have been used in the commercial and industrial market segments as warehouses, distribution centers and industrial facilities. They're making inroads into other markets, however, such as churches, schools, shopping centers, office buildings and other commercial and mixed-use facilities. The flexibility of using a ParsCo metal building as your frame and structure saves customers money and the savings can be used towards upgrading the facade and interiors to meet the clients needs.

The structures can incorporate many architectural finishes—including masonry, brick, tilt-up, ornamental metal or stucco façades—while still being cost competitive. Basic elements reign across all metal buildings: primary rigid frames, secondary members (wall girts and roof purlins), cladding and bracing. All of those elements work together to create an efficient system. Engineered systems also withstand extreme loading from disasters such as earthquakes and hurricanes.
The buildings also are a good fit for developers, many of whom are starting to look at buildings as long-term investments. Due to the permanence, durability, stability and quality of metal buildings, life cycles can reach up to 100 years. Metal buildings can also help meet green initiatives. About 35 percent of steel used in buildings comes from recycled products and steel is 100 percent recyclable. In addition, metal buildings are easy to insulate and, when paired with cool roofing, can help lower heating and cooling costs.
If you are interested in a Pre-Engineered Metal Building contact ParsCo at 850-696-7656 or email us at info@pars-co.net.
Monday, May 6, 2013
ParsCo Construction Management Advantages
Friday, May 3, 2013
NOAA Disaster Response Center (DRC) successfully completed ahead of schedule
On behalf of Charlie Henry, Director of NOAA DRC, and myself, we thank you Amir and ParsCo for a project well done. Please convey our thanks out to your team they did an exceptional job on the project.



















